Exceptional traditional villa, professionally extended and upgraded to offer an impressive family home set in mature gardens in a prestigious area of this admired village.
Property Description
A beautiful home positioned in extensive gardens on Donaldfield Road in the upper village of Bridge of Weir. The mature gardens provide an amazing space to entertain and for children to explore with views to the surrounding countryside. A large, refurbished garage provides an additional activity space linked to the main house by a Pergola with a terrace for outdoor dining. The rear garden is screened by mature hedgerow and trees with a lawn that extends over the Pow Burn to a wild garden area.
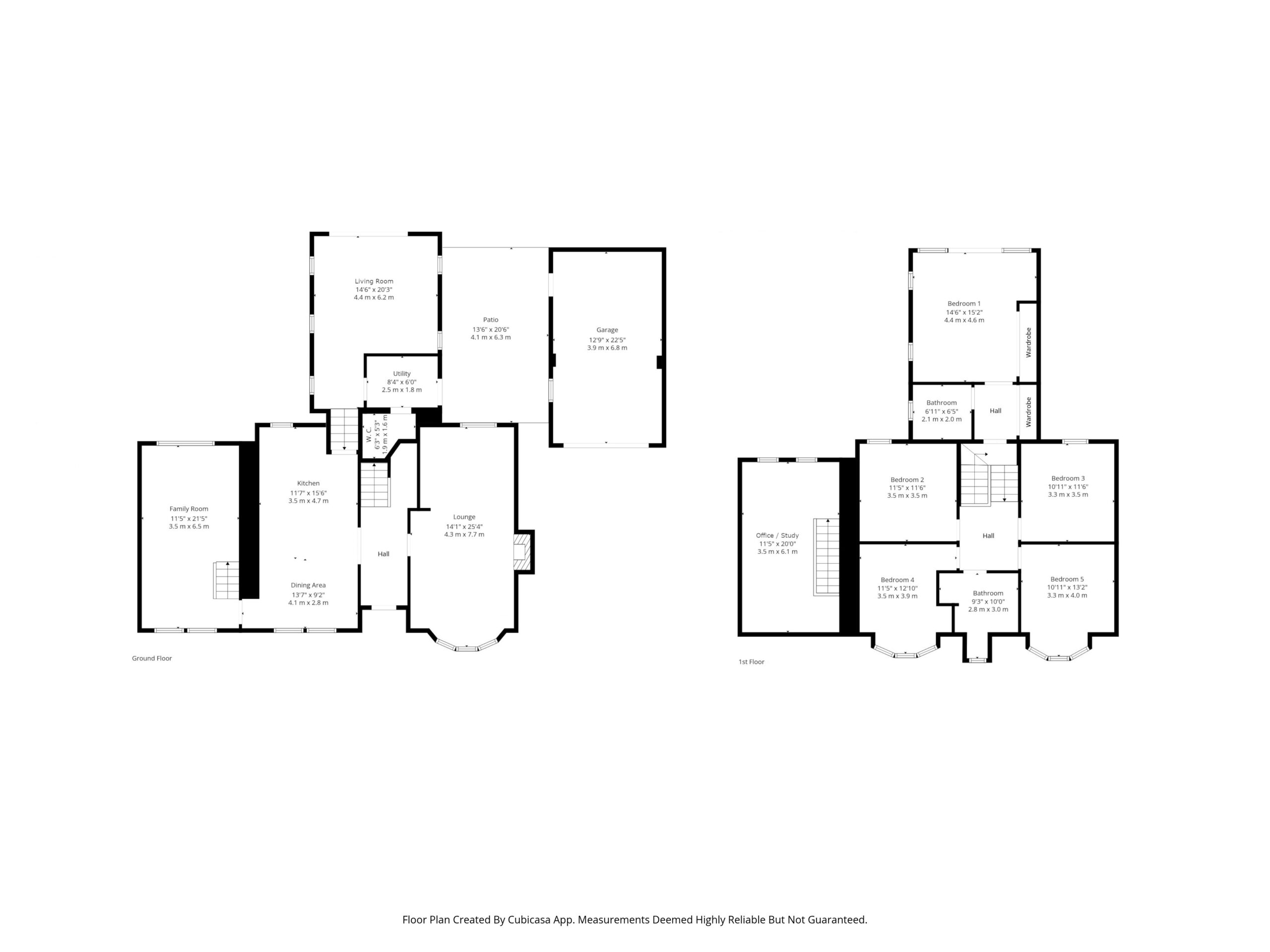
The sympathetic extension and extensive modernisation of this period home blends traditional character with modern comfort and convenience. There is a modern heating system, double glazed windows and doors, stylish modern bathrooms and a fantastic, fitted kitchen with a central island, quality appliances and space for a dining area. The large living room has a media wall with a modern fireplace and bifold doors to the gardens. A vaulted ceiling with a French balcony overlooking the rear gardens features in the stunning principal bedroom.
A broad reception hall features modern décor and a traditional stair to the upper floor. The lounge has an open fire with surround, large bay window and an open plan layout to the dining room with another open fire and modern herringbone flooring throughout. The kitchen forms the heart of this amazing home with stairs to the rear living room and access to the spacious family room. There are elegant wall and floor units with quartz work surfaces, integrated appliances and a large island with a breakfast bar. The living room is bathed in light with rear bifold doors, windows to either side and a modern fire with media wall. The utility room has a door to the covered patio and access to a wc/cloakroom. The family room is located in the westerly extension and it has a stair to a first floor home office.
The upper floor has a half landing opening to the principal bedroom suite with a lovely shower room and a large bedroom with a vaulted ceiling, fitted wardrobes and a French balcony. There are four further bedrooms and a luxury family bathroom.
EER Band: C
Council Tax: G
Local Area
Bridge of Weir has good road links towards the M8 motorway, Glasgow International Airport and Glasgow city centre. The village offers a wide range of local amenities including restaurants, shops and a library. The village has a popular Primary School with a nursery and secondary education is at the prestigious Gryffe High School. There is also private schooling nearby at St. Columba’s in Kilmacolm. The village has two 18-hole golf courses and there is fishing available on the River Gryffe.
Travel Directions
PA11 3JG 18 Donaldfield Road, Bridge of Weir.
Enquire
Branch Details
Branch Address
2 Windsor Place,
Main Street,
PA11 3AF
Tel: 01505 691 400
Email: bridgeofweir@corumproperty.co.uk
Opening Hours
Mon – 9 - 5.30pm
Tue – 9 - 5.30pm
Wed – 9 - 8pm
Thu – 9 - 8pm
Fri – 9 - 5.30pm
Sat – 9.30 - 1pm
Sun – 12 - 3pm
