131 Hillview Drive
Offers Over £349,000
- 3
- 2
- 1
- 1216 sq. ft.
** CLOSING DATE - FRIDAY 14TH FEBRUARY AT 12 NOON ** An extended semi-detached villa enjoying a sought-after location.
Property Description
This traditional semi-detached villa enjoys a convenient location within this popular pocket of Clarkston. Significantly enhanced by way of rear extension and set within private south facing gardens, the subjects offer a great opportunity to the local marketplace.
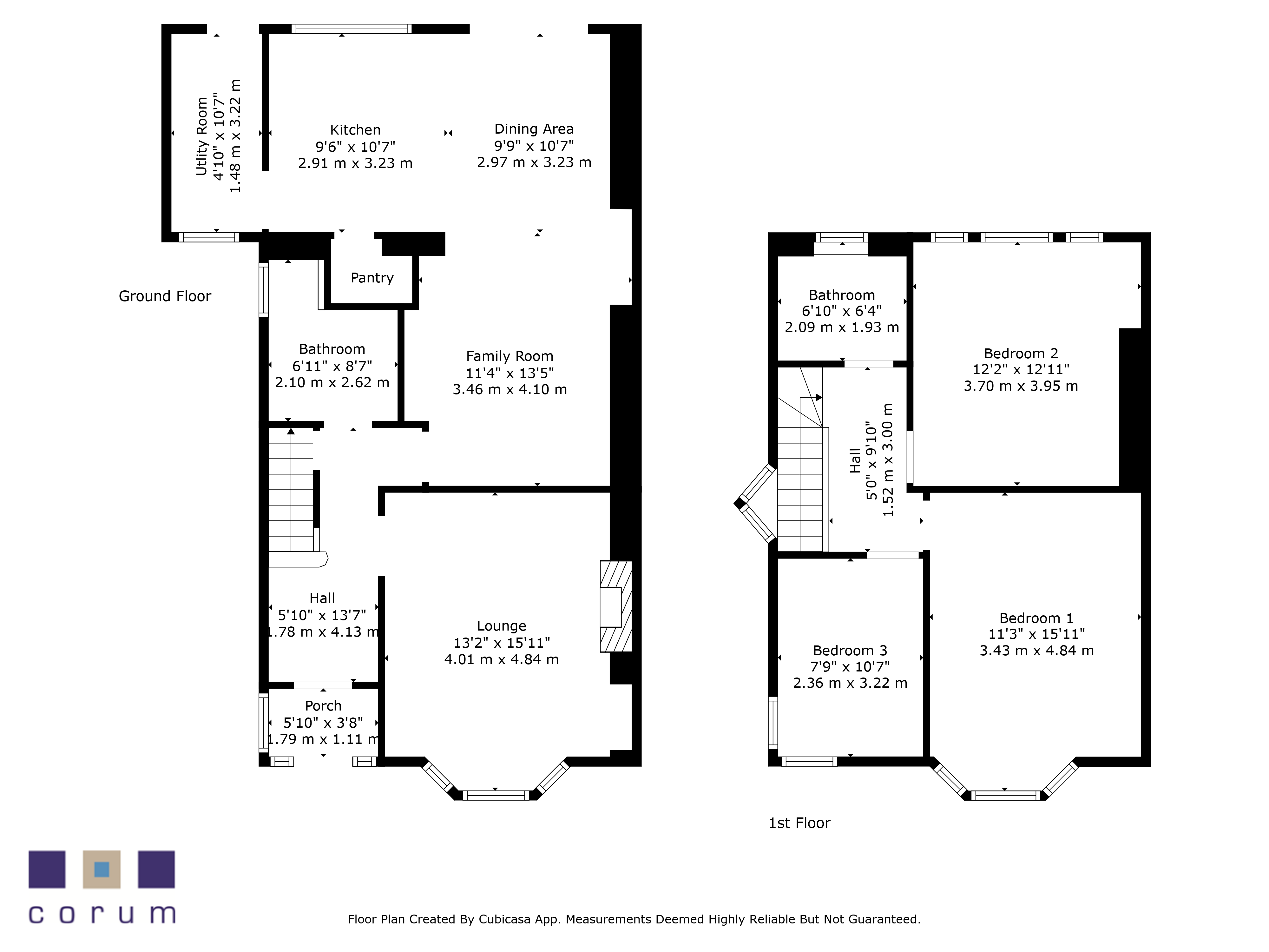
Ground floor accommodation extends to entrance vestibule, traditional style reception hallway with modern downstairs bathroom adjacent, generous bay windowed formal lounge with feature fireplace to front, lovely family / sitting room with open plan access to fantastic open plan kitchen / dining / living area with feature pitched roof and French doors to gardens.
Ground floor completed by useful laundry / utility room. The upstairs landing area gives access to a generous principal bedroom, second spacious double bedroom, good third bedroom and contemporary main shower room. Additional storage provided by way of attic space. Specification includes gas central heating, double glazing and overall, the subjects are well presented and decorated throughout.
Externally the property is set within private level south facing garden grounds. Said gardens are enclosed and designed for ease of maintenance by virtue of patio and lawned areas. Driveway to front providing vehicular parking.
Local Area
A haven for young growing families, the district offers an abundance of sports and recreational facilities, excellent shopping and retail outlets, the district is synonymous with some of the best schooling in the West of Scotland. The shopping suburb of Clarkston offers independent retailers with cafes, delis, restaurants and there are excellent transport provisions provided for the city centre via road and rail, from Clarkston and Williamwood train stations.
Directions
Sat Nav G76 7LE
Enquire
Branch Details
Branch Address
5 Helena Place,
Clarkston,
G76 7RB
Tel: 0141 648 6000
Email: clarkston@corumproperty.co.uk
Opening Hours
Mon – 9 - 5.30pm
Tue – 9 - 5.30pm
Wed – 9 - 8pm
Thu – 9 - 8pm
Fri – 9 - 5.30pm
Sat – 9.30 - 1pm
Sun – By Appointment
