40 Robslee Road
Offers Over £325,000
- 5
- 2
- 1
- 1313 sq. ft.
** SOLD AT CLOSING DATE ** An extended semi detached house enjoying an ever popular location with excellent amenities and schooling close by.
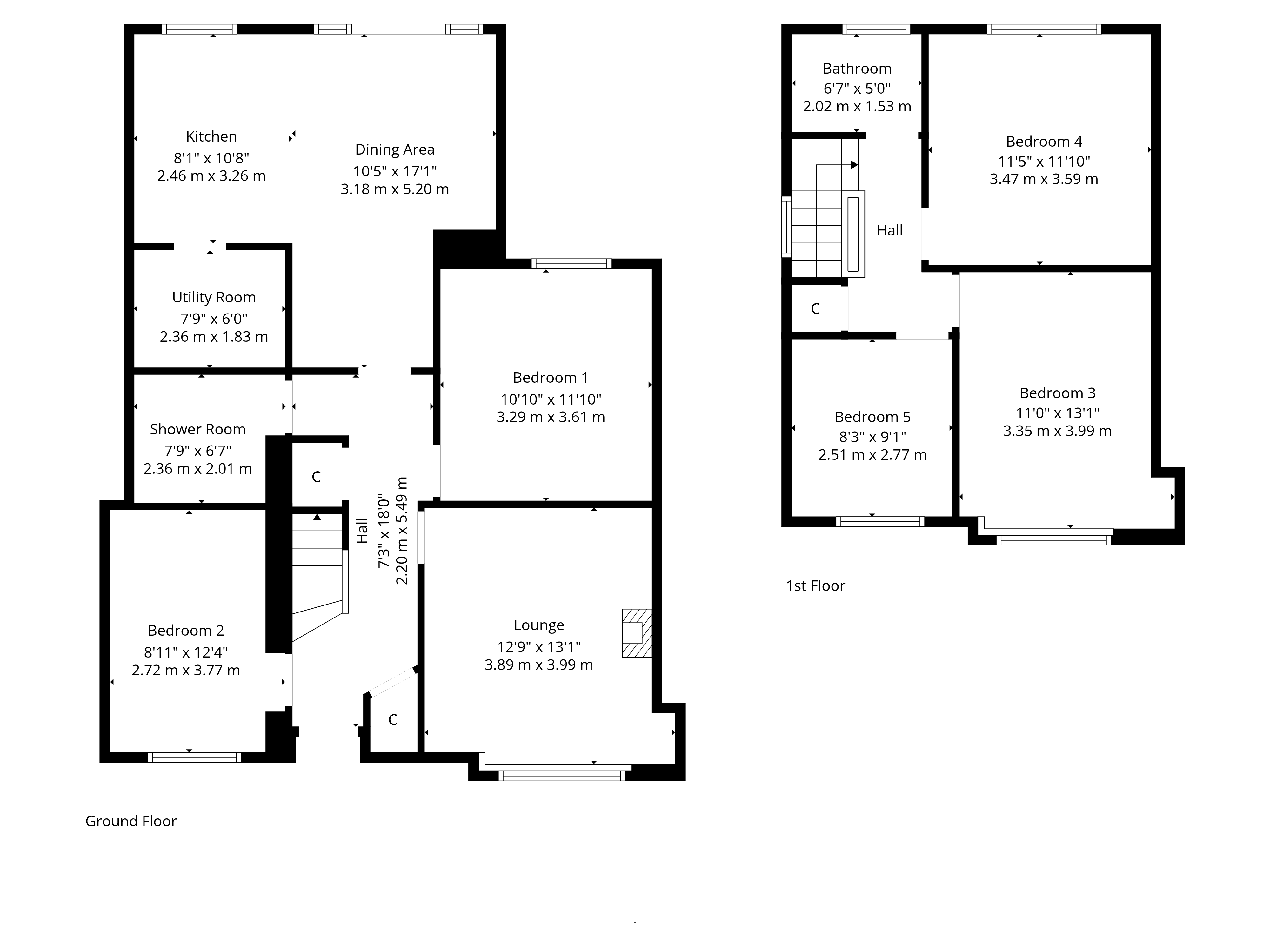
This traditional five bedroom semi detached villa has been extended and reconfigured to provide a great flowing family home. Fantastic landscaped and private rear garden grounds which enjoy a highly popular and sought after location, the subjects are conveniently located for a full range of local amenities, facilities, and of course local excellent schooling.
The well proportioned accommodation in brief extends to entrance hallway, lounge to front, modern fitted kitchen with open plan dining and family area with garden access. There are also two ground floor bedrooms, offering excellent flexibility for guests, home working or multi generational living, along with a modern shower room. Upstairs there is a bright spacious landing area giving access to three further bedrooms with storage and family bathroom suite. Specification includes a system of gas central heating and double glazing.
Externally the subjects are set within easily maintained level garden grounds enclosed to the rear with lawn and patio areas. The driveway to the front provides expansive vehicular parking.
The floor plan shall provide you with a detailed layout of this fantastic family home, however, we recommend viewing to appreciate the size and convenient location on offer.
EER Band C.
Local Area
The high amenity district of Thornliebank offers an extensive range of amenities including shopping facilities from a range of local and national retailers, and a regular train service from Thornliebank Train station offers quick and convenient access to both Glasgow city centre and the surrounding suburbs of Glasgow. Thornliebank is also located just a short distance from the excellent facilities and high achieving schooling of nearby highly sought after Giffnock. An abundance of sports and leisure facilities are available within the area including PureGym, David Lloyd Sports Club, Whitecraigs Golf Club, Giffnock and Whitecraigs Tennis Clubs and Rouken Glen Park.
Enquire
Branch Details
Branch Address
134 Ayr Road,
Newton Mearns,
G77 6EG
Tel: 0141 639 5888
Email: n.mearns@corumproperty.co.uk
Opening Hours
Mon – 9 - 5.30pm
Tue – 9 - 8pm
Wed – 9 - 8pm
Thu – 9 - 8pm
Fri – 9 - 5.30pm
Sat – 9.30 - 1pm
Sun – 12 - 3pm
