Glenside Joppa
Offers Over £350,000
- 5
- 5
- 3
- 2831 sq. ft.
*** CLOSING DATE FRIDAY 16th JANUARY AT 11am *** A stunning detached chalet bungalow providing deceptively spacious, flexible accommodation and set in generous gardens in the heart of Coylton close to the Primary School.
*** CLOSING DATE FRIDAY 16th JANUARY AT 11am *** ‘Glenside’ is an impressive detached chalet bungalow which has been comprehensively upgraded, extended and reconfigured by the current owners resulting in a wonderful home suited to a variety of potential purchasers including families and indeed those clients seeking predominantly all on the level living without compromising on space. The property provides extensive, well proportioned accommodation with the focal point of the property being a fabulous open plan kitchen/dining/family room with bi-fold doors onto the south facing rear garden.
Features and benefits of the property include a modern fitted kitchen with centre island, luxury sanitary ware, bank of 16 solar panels, quality floor coverings, wood burning stove in the kitchen/dining/family room, generous wardrobe/cupboard space, gas central heating, neutral decoration and double glazing.
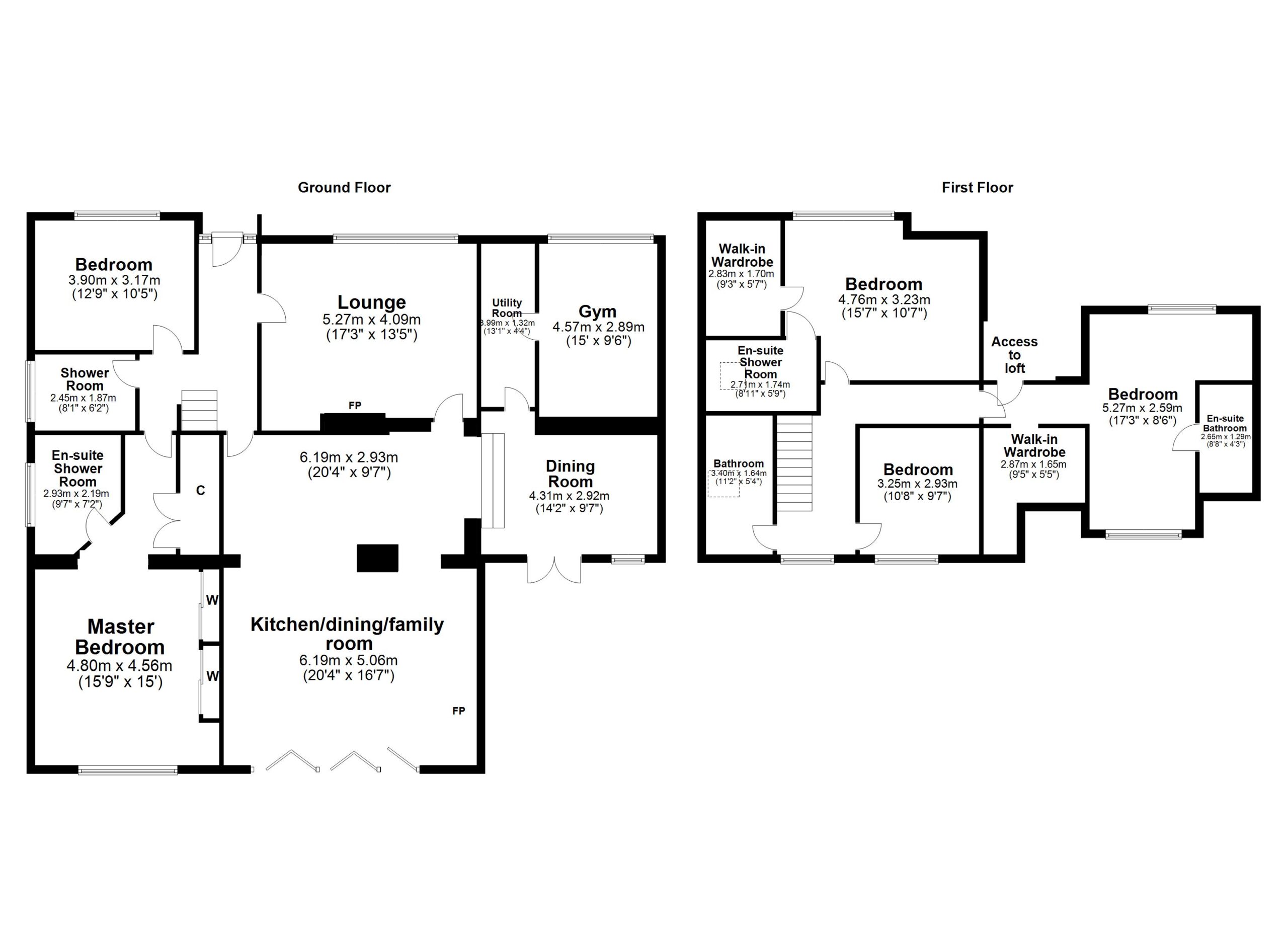
In summary the accommodation extends to, on the ground floor, a welcoming reception hallway, front facing lounge room with feature fireplace, open plan kitchen/dining/family room,, dining room, two double bedrooms (including a master with three piece en-suite shower room), further three piece shower room, utility room and gym. Upstairs there are three further double bedrooms and a three piece bathroom. Two of the bedrooms feature en-suites (one en-suite bathroom and one en-suite shower room) and walk-in wardrobes.
Externally the front garden is laid to lawn with surrounding shrubbery borders with a block paved driveway providing space for several vehicles. The enclosed south facing, rear garden is predominately laid to lawn with deck, patio area, well stocked shrubbery borders and mature trees. In addition there is a barbecue hut, covered external kitchen and storage shed (7m x 3m) with adjacent log store.
EER - C
Local Area
The property enjoys an excellent position close to the heart of Coylton, a highly popular village with a wide range of local amenities and around 6 miles from the centre of Ayr. The village provides shops, chemist, library, recreational/sporting facilities and an excellent primary school. The nearby town of Ayr provides a more comprehensive range of amenities including retail and supermarket shopping and main line rail link to Glasgow.
Enquire
Branch Details
Branch Address
10 Beresford Terrace,
Ayr,
KA7 2EG
Tel: 01292 880 888
Email: ayr@corumproperty.co.uk
Opening Hours
Mon – 9 - 5.30pm
Tue – 9 - 5.30pm
Wed – 9 - 8pm
Thu – 9 - 8pm
Fri – 9 - 5.30pm
Sat – 9.30 - 1pm
Sun – Closed
