17 Langdale Circle
Offers Over £660,000
- 5
- 5
- 2
- 2400 sq. ft.
Magnificent five bedroom detached family home in recently completed development by Cala Homes in the Gryffe High School catchment area of Houston.
A luxurious modern detached family home within the sought after ‘Woodend Green’ development, built by renowned home builders CALA Homes in 2022. An exclusive development on the rural edge of this sought after village in West Renfrewshire offering renowned local schooling only 15 miles from Glasgow City Centre and under 7 miles from Glasgow International Airport.
An impressive ‘Moncrief’ style of property that offers wonderful family accommodation, beautifully decorated with stylish décor and quality floor coverings. The exacting specification includes a high quality fitted kitchen with Siemens appliances and a large island incorporating a breakfast bar. Stylish modern sanitary ware and tiling feature in the cloakroom, family bathroom and three ensuite bathrooms. There is a gas fired central heating system supplemented by solar panels, efficient double glazing including bi-fold and external doors. The integral double garage features an electric, remote controlled door, with an external car charger. There is an integrated security system and alarm. The enclosed rear gardens have been professionally landscaped to provide a wonderful space for families to enjoy.
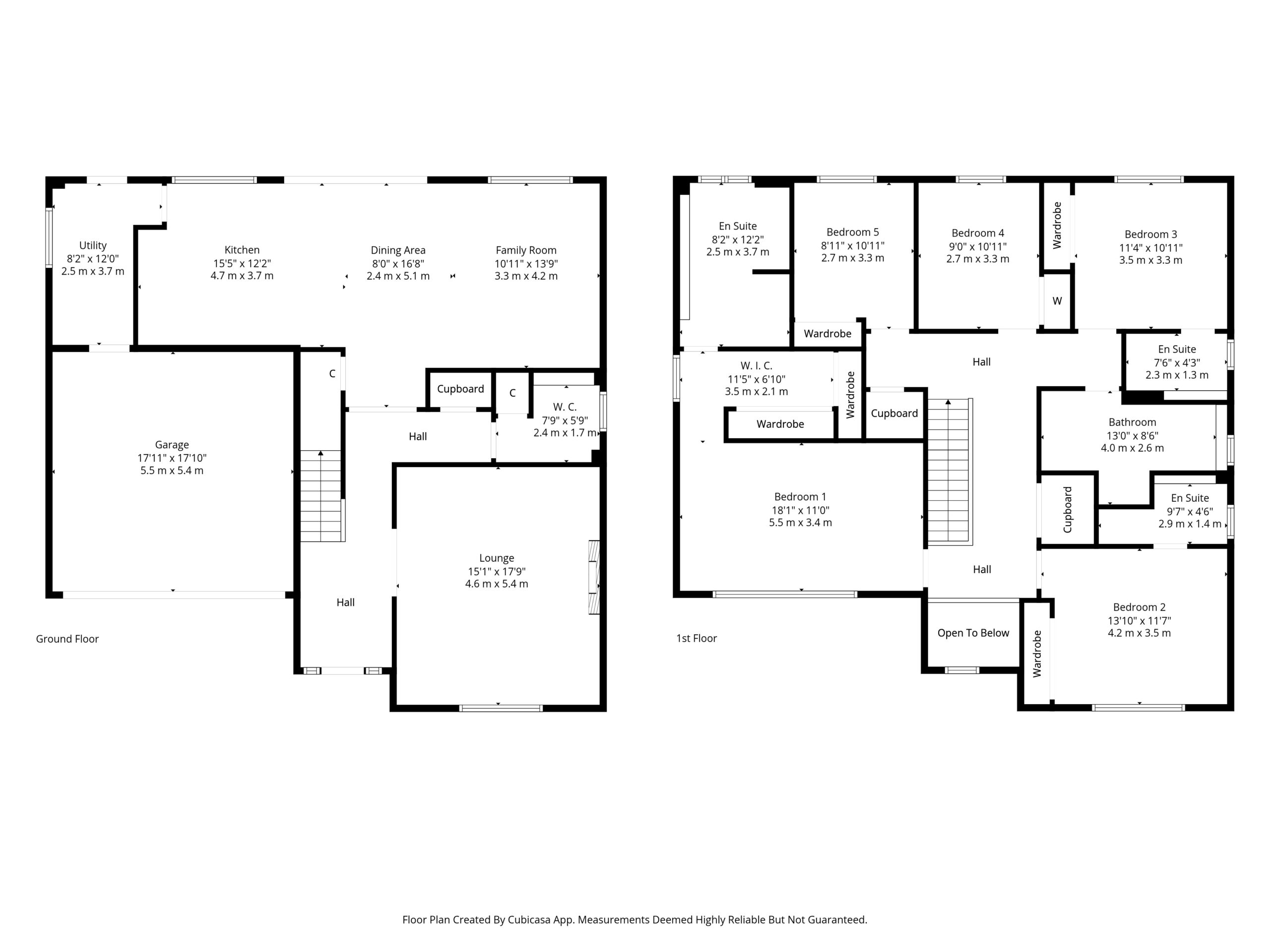
The internal accommodation comprises an entrance hallway with a stair to the upper floor, a store cupboard and WC/cloakroom. Twin glazed doors open to the lovely main lounge with a front facing window formation. The heart of this striking home is the remarkable open plan kitchen/living/dining room extending along the rear of the property with bifold doors and windows to the landscaped rear garden. This bright and airy space offers ample space for dining and living furniture as well as the luxurious fitted kitchen with breakfasting bar, Silestone quartz worktops and a range of state of the art ‘Siemens’ appliances. The utility room provides further space for appliances, internal access in the garage and a door to the garden.
The upper level of the property has an impressive galleried hallway with two large storage cupboards and access to all the bedrooms and the family bathroom. The principal bedroom suite is a generous double sized room with a Juliet balcony, a dressing area with fitted wardrobes and a luxury ensuite bathroom featuring a large walk in shower, a bath, dual wash basins and a WC. Bedroom two and three both feature fitted wardrobes and ensuite shower rooms. The remaining two double bedrooms also have fitted wardrobes and are currently configured as a dressing room and a home office. A large family bathroom features a fitted bath, walk in shower, WC, and wash hand basin. The part floored attic provides further storage.
The property occupies an enviable position within the development and is accompanied by a large, level plot with a broad monobloc driveway to the front providing off street parking for two vehicles and a fully enclosed landscaped rear garden. This has a large patio area along the rear of the house, artificial grass and a raised composite deck along the rear boundary. The rear garden faces Southeast which ensures optimal sunlight throughout the day.
EER band: B
Council Tax Band: G
Local Area
The conservation village of Houston is popular with commuters with good road links via the A737 to the M8 motorway network. Johnstone railway station has regular services to Glasgow City Centre and the Clyde coast. Houston has excellent local schooling at Nursery, Primary and Secondary levels including the sought after Gryffe High School. There are several golf courses in the local area, equestrian facilities at Ingliston, a bowling club and Strathgryffe Tennis, Squash and Fitness Centre.
Travel Directions
PA6 7DY 17 Langdale Circle, Houston
Enquire
Branch Details
Branch Address
2 Windsor Place,
Main Street,
PA11 3AF
Tel: 01505 691 400
Email: bridgeofweir@corumproperty.co.uk
Opening Hours
Mon – 9 - 5.30pm
Tue – 9 - 5.30pm
Wed – 9 - 8pm
Thu – 9 - 8pm
Fri – 9 - 5.30pm
Sat – 9.30 - 1pm
Sun – 12 - 3pm
